1 1/2 story Main Level Garage
|
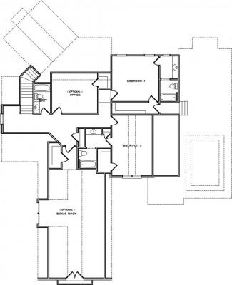
Number of Bedrooms: 4 Number of Bathrooms: 4.5 Main Level Garage: Yes Square Footage: 3732 Width: 69 Depth: 66 |
Price: $1200.00 |
(click on main home plan image for a larger view)
![]() Second Level | |
House Plan - Front |
House Plan - Main Level |










