1 1/2 story Main Level Garage Lake Homes
|
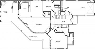
Number of Bedrooms: 4 Number of Bathrooms: 3.5 Main Level Garage: Yes Square Footage: 3526 Width: 54 Depth: 84 |
Price: $1200.00 |
(click on main home plan image for a larger view)
![]() Main Level | |
House Plan - Front |
House Plan - Second Level |










