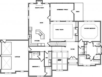
1 1/2 story Main Level Garage
|
Number of Bedrooms: 4 Number of Bathrooms: 4.5 Main Level Garage: Yes Square Footage: 3446 Width: 78 Depth: 57 |
Price: $1000.00 |
(click on main home plan image for a larger view)
![]() Main Level | |
House Plan - Front |
House Plan - Second Level |










