1 1/2 story Best Selling Home Plans
|
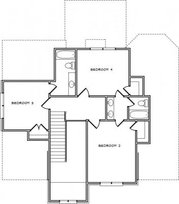
Number of Bedrooms: 4 Number of Bathrooms: 3.5 Main Level Garage: No Square Footage: 2298 Width: 44 Depth: 40 |
Price: $900.00 |
(click on main home plan image for a larger view)
![]() Second Level | |
House Plan - Front |
House Plan - Main Level |










