1 1/2 story
|
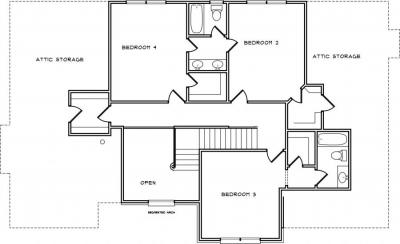
Number of Bedrooms: 5 Number of Bathrooms: 4.0 Main Level Garage: No Square Footage: 3109 Width: 60 Depth: 36 |
Price: $1000.00 |
(click on main home plan image for a larger view)
![]() Second Level | |
House Plan - Front |
House Plan - Main Level |










