1 1/2 story Main Level Garage New House Plans
|
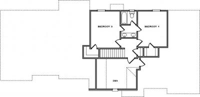
Number of Bedrooms: 3 Number of Bathrooms: 2.5 Main Level Garage: Yes Square Footage: 2094 Width: 75 Depth: 38 |
Price: $900.00 |
(click on main home plan image for a larger view)
![]() Second Level | |
House Plan - Front |
House Plan - Main Level |










