1 1/2 story Main Level Garage New House Plans
|
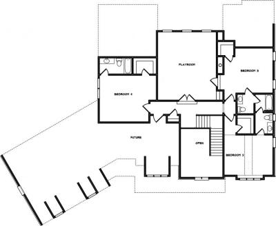
Number of Bedrooms: 4 Number of Bathrooms: 3.5 Main Level Garage: Yes Square Footage: 4144 Width: 0 Depth: 0 |
Price: $1400.00 |
(click on main home plan image for a larger view)
![]() Second Level | |
House Plan - Front |
House Plan - Main Level |










