Split Foyer Best Selling Home Plans
|
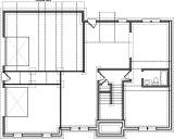
Number of Bedrooms: 3 Number of Bathrooms: 2.0 Main Level Garage: No Square Footage: 1914 Width: 51 Depth: 42 |
Price: $850.00 |
(click on main home plan image for a larger view)
![]() Front View | |
House Plan - Main Level |
House Plan - Basement |










