1 1/2 story Main Level Garage
|
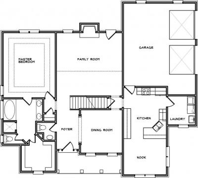
Number of Bedrooms: 3 Number of Bathrooms: 2.5 Main Level Garage: Yes Square Footage: 2017 Width: 54 Depth: 48 |
Price: $900.00 |
(click on main home plan image for a larger view)
![]() Main Level | |
House Plan - Front |
House Plan - Second Level |










