House Plans
House Plans
2057 Valleydale Road - Suite 120 · Birmingham, AL · 35244 · 205.995.0070
House Plans
Search

Home Plan - Front View
One Level
Front View
1 1/2 story
Home Plan - Front View
Split Foyer
Home Plan - Front View
2 Story
Home Plan - Front View
Lake Homes
Home Plan - Front View
Farm House
Home Plan - Front View
Detached Garages
Home Plan - Front View
Craftsman / Cottage








 
House Plans Related House Plan Categories:


Number of Bedrooms: 4
Number of Bathrooms: 4.5
Main Level Garage: Yes
Square Footage: 4745
Width: 113
Depth: 99

Price: $1500.00

Front view for #21-242
(click on main home plan image for a larger view)
Home Plan - Front View
Front View

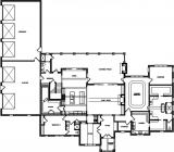
Home Plan - Main Level
House Plan - Main Level
Home Plan - Second Level
House Plan - Second Level