1 1/2 story Basement Garage
|
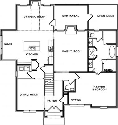
Number of Bedrooms: 4 Number of Bathrooms: 3.5 Main Level Garage: No Square Footage: 2598 Width: 52 Depth: 53 |
Price: $950.00 |
(click on main home plan image for a larger view)
![]() Main Level | |
House Plan - Front |
House Plan - Second Level |










