1 1/2 story Basement Garage
|
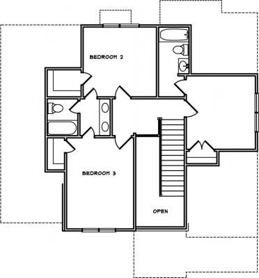
Number of Bedrooms: 3 Number of Bathrooms: 3.5 Main Level Garage: No Square Footage: 2168 Width: 43 Depth: 47 |
Price: $900.00 |
(click on main home plan image for a larger view)
![]() Second Level | |
House Plan - Front |
House Plan - Main Level |










