Craftsman / Cottage
|
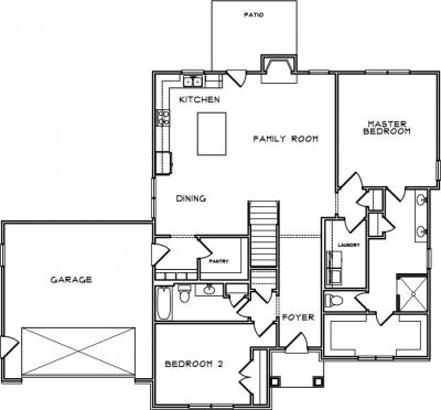
Number of Bedrooms: 4 Number of Bathrooms: 3.5 Main Level Garage: Yes Square Footage: 1998 Width: 78 Depth: 78 |
Price: $850.00 |
(click on main home plan image for a larger view)
![]() Main Level | |
House Plan - Front |
House Plan - Second Level |










