Craftsman / Cottage
| 
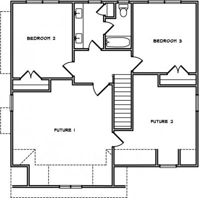
Number of Bedrooms: 3 Number of Bathrooms: 2.5 Main Level Garage: No Square Footage: 1760 Width: 36 Depth: 38  | 
Price: $850.00 | 
(click on main home plan image for a larger view)
![]() Second Level  | |
House Plan - Front  | 
House Plan - Main Level  | 










