1 1/2 story
|
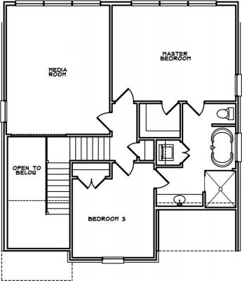
Number of Bedrooms: 3 Number of Bathrooms: 2.0 Main Level Garage: No Square Footage: 3435 Width: 35 Depth: 41 |
Price: $1000.00 |
(click on main home plan image for a larger view)
![]() Second Level | |
House Plan - Front |
House Plan - Main Level |










