1 1/2 story Parade of Homes
| 
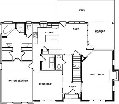
Number of Bedrooms: 4 Number of Bathrooms: 3.5 Main Level Garage: No Square Footage: 2502 Width: 53 Depth: 36  | 
Price: $950.00 | 
(click on main home plan image for a larger view)
![]() Main Level  | |
House Plan - Front  | 
House Plan - Second Level  | 










