Farm House
|
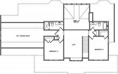
Number of Bedrooms: 3 Number of Bathrooms: 3.5 Main Level Garage: Yes Square Footage: 2590 Width: 76 Depth: 57 |
Price: $950.00 |
(click on main home plan image for a larger view)
![]() Second Level | |
House Plan - Front |
House Plan - Main Level |










