Split Foyer
| 
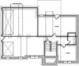
Number of Bedrooms: 3 Number of Bathrooms: 2.0 Main Level Garage: No Square Footage: 1636 Width: 51 Depth: 39  | 
Price: $850.00 | 
(click on main home plan image for a larger view)
![]() Front View  | |
House Plan - Main Level  | 
House Plan - Basement  | 










