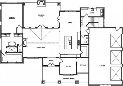
Main Level Garage 1 1/2 story Farm House
|
Number of Bedrooms: 5 Number of Bathrooms: 3.5 Main Level Garage: Yes Square Footage: 4614 Width: 90 Depth: 63 |
Price: $1500.00 |
(click on main home plan image for a larger view)
![]() Main Level | |
House Plan - Front |
House Plan - Second Level |










