Craftsman / Cottage
|
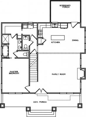
Number of Bedrooms: 3 Number of Bathrooms: 2.5 Main Level Garage: No Square Footage: 2118 Width: 36 Depth: 51 |
Price: $900.00 |
(click on main home plan image for a larger view)
![]() Main Level | |
House Plan - Front |
House Plan - Second Level |










