Farm House
|
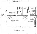
Number of Bedrooms: 1 Number of Bathrooms: 2.0 Main Level Garage: No Square Footage: 1496 Width: 52 Depth: 50 |
Price: $850.00 |
(click on main home plan image for a larger view)
![]() Front View | |
House Plan - Main Level |
House Plan - Second Level |










