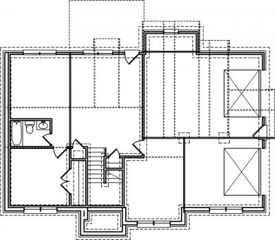
Split Foyer
|
Number of Bedrooms: 3 Number of Bathrooms: 2.0 Main Level Garage: No Square Footage: 2288 Width: 51 Depth: 40 |
Price: $900.00 |
(click on main home plan image for a larger view)
![]() Basement Level | |
House Plan - Front |
House Plan - Main Level |










