One Level Basement Garage Craftsman / Cottage
|
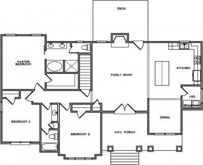
Number of Bedrooms: 3 Number of Bathrooms: 2.0 Main Level Garage: No Square Footage: 1628 Width: 59 Depth: 47 |
Price: $850.00 |
(click on main home plan image for a larger view)
![]() Main Level |
House Plan - Front |










