Craftsman / Cottage Basement Garage One Level
|
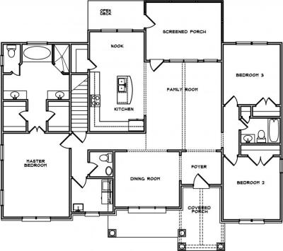
Number of Bedrooms: 3 Number of Bathrooms: 2.0 Main Level Garage: No Square Footage: 1830 Width: 57 Depth: 42 |
Price: $850.00 |
(click on main home plan image for a larger view)
![]() Main Level |
House Plan - Front |










