House Plans
House Plans
2057 Valleydale Road - Suite 120 · Birmingham, AL · 35244 · 205.995.0070
House Plans
Search

Home Plan - Front View
One Level
Front View
1 1/2 story
Home Plan - Front View
Split Foyer
Home Plan - Front View
2 Story
Home Plan - Front View
Lake Homes
Home Plan - Front View
Farm House
Home Plan - Front View
Detached Garages
Home Plan - Front View
Craftsman / Cottage








 
House Plans Related House Plan Categories:
Craftsman / Cottage
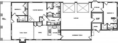
Number of Bedrooms: 3
Number of Bathrooms: 3.0
Main Level Garage: Yes
Square Footage: 1670
Width: 101
Depth: 36

Price: $850.00

Main Level for #19-218
(click on main home plan image for a larger view)
Home Plan - Main Level
Main Level

Home Plan - Front View
House Plan - Front