1 1/2 story Main Level Garage New House Plans
|
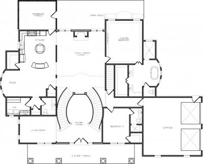
Number of Bedrooms: 5 Number of Bathrooms: 4.5 Main Level Garage: Yes Square Footage: 4732 Width: 82 Depth: 67 |
Price: $1500.00 |
(click on main home plan image for a larger view)
![]() Main Level | |
House Plan - Front |
House Plan - Second Level |










