Split Foyer New House Plans
|
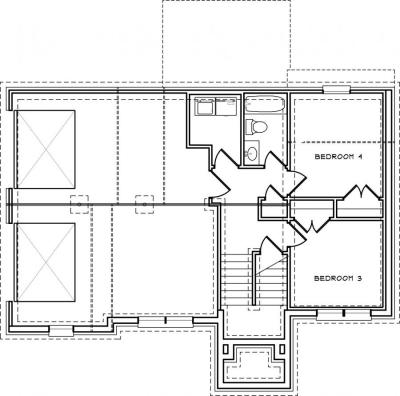
Number of Bedrooms: 2 Number of Bathrooms: 2.0 Main Level Garage: No Square Footage: 1244 Width: 45 Depth: 35 |
Price: $850.00 |
(click on main home plan image for a larger view)
![]() Basement Level | |
House Plan - Front |
House Plan - Main Level |










