1 1/2 story Main Level Garage New House Plans
|
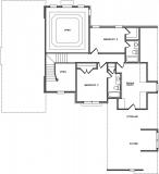
Number of Bedrooms: 3 Number of Bathrooms: 3.5 Main Level Garage: Yes Square Footage: 2698 Width: 62 Depth: 69 |
Price: $950.00 |
(click on main home plan image for a larger view)
![]() Front View | |
House Plan - Main Level |
House Plan - Second Level |










