1 1/2 story Lake Homes
|
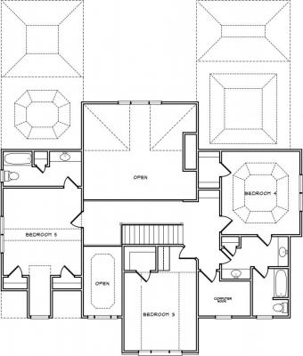
Number of Bedrooms: 5 Number of Bathrooms: 4.0 Main Level Garage: No Square Footage: 3526 Width: 49 Depth: 61 |
Price: $1200.00 |
(click on main home plan image for a larger view)
![]() Second Level | |
House Plan - Front |
House Plan - Main Level |










