1 1/2 story Main Level Garage New House Plans
|
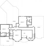
Number of Bedrooms: 4 Number of Bathrooms: 4.5 Main Level Garage: Yes Square Footage: 4345 Width: 75 Depth: 82 |
Price: $1400.00 |
(click on main home plan image for a larger view)
![]() Front View | |
House Plan - Main Level |
House Plan - Second Level |










