1 1/2 story Main Level Garage New House Plans
|
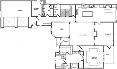
Number of Bedrooms: 4 Number of Bathrooms: 2.5 Main Level Garage: Yes Square Footage: 3695 Width: 56 Depth: 91 |
Price: $1200.00 |
(click on main home plan image for a larger view)
![]() Main Level | |
House Plan - Front |
House Plan - Second Level |










