1 1/2 story New House Plans
|
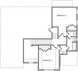
Number of Bedrooms: 3 Number of Bathrooms: 2.5 Main Level Garage: No Square Footage: 2242 Width: 40 Depth: 41 |
Price: $900.00 |
(click on main home plan image for a larger view)
![]() Front View | |
House Plan - Main Level |
House Plan - Second Level |










