Split Foyer New House Plans
| 
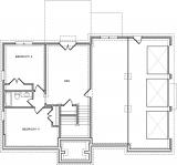
Number of Bedrooms: 3 Number of Bathrooms: 2.0 Main Level Garage: No Square Footage: 2002 Width: 55 Depth: 41  | 
Price: $900.00 | 
(click on main home plan image for a larger view)
![]() Front View  | |
House Plan - Main Level  | 
House Plan - Basement  | 










