One Level New House Plans
|
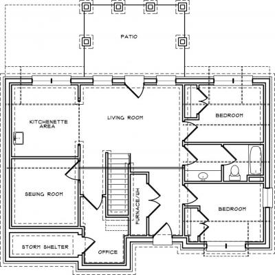
Number of Bedrooms: 3 Number of Bathrooms: 2.5 Main Level Garage: No Square Footage: 1418 Width: 44 Depth: 43 |
Price: $850.00 |
(click on main home plan image for a larger view)
![]() Basement Level | |
House Plan - Front |
House Plan - Main Level |










