1 1/2 story New House Plans
|
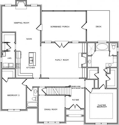
Number of Bedrooms: 4 Number of Bathrooms: 3.0 Main Level Garage: No Square Footage: 2678 Width: 53 Depth: 54 |
Price: $950.00 |
(click on main home plan image for a larger view)
![]() Main Level | |
House Plan - Front |
House Plan - Second Level |










