One Level Main Level Garage New House Plans
|
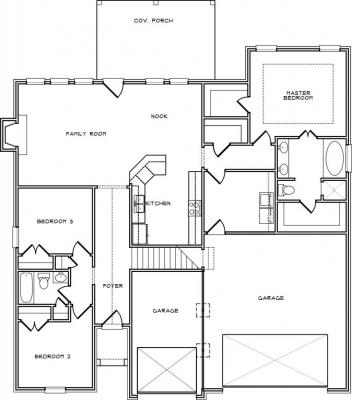
Number of Bedrooms: 3 Number of Bathrooms: 2.0 Main Level Garage: Yes Square Footage: 1670 Width: 53 Depth: 54 |
Price: $850.00 |
(click on main home plan image for a larger view)
![]() Main Level |
House Plan - Front |










