New House Plans 1 1/2 story
| 
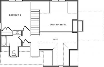
Number of Bedrooms: 2 Number of Bathrooms: 2.0 Main Level Garage: No Square Footage: 1568 Width: 48 Depth: 31  | 
Price: $850.00 | 
(click on main home plan image for a larger view)
![]() Second Level  | |
House Plan - Front  | 
House Plan - Main Level  | 










